Maison à vendre | 189000 €
Rue Félix Chaumont 80 4040 HERSTAL
Description
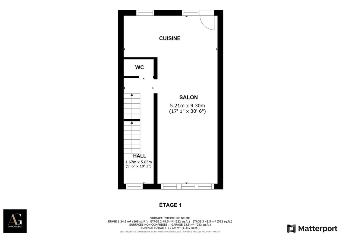
Maison en gros oeuvre fermé sous régime des droits d'enregistrement (3%), style bel étage offrant la possibilité de personnaliser l'intérieur selon vos gouts et besoins. Au rez-de-chaussée: hall d'entrée, garage électrique, buanderie, jardin bénéficiant d'une belle orientation. 1er étage: salon, salle à manger, cuisine, wc. 2ème étage: hall de nuit, 3 chambres lumineuses, salle de bain avec la possibilité d'aménager le grenier en 4eme chambre. Cette maison représente une excellente opportunité d'acquérir une propriété de qualité avec un gros oeuvre déjà réalisé et des possibilités d'aménagement infinies. Déjà raccordé aux impétrants (eau, gaz, électricité), offrant une facilité d'installation pour vos besoins quotidien. Parfait pour créer votre cocon familial!
Général
Quartier ou lieu-dit
État du bâtiment
Non communiquéNombre d'étages
2Nombre de façades
2 façadesEau
OuiGaz
OuiElectricité
Oui
Intérieur
Surface habitable
135 m²Type de cuisine
Non communiquéChambres
3Salles de bains
1Toilettes
1Toit
Non communiqué
Extérieur
Surface du terrain
210 m²Jardin
OuiSurface du jardin
100
Installations
Énergie
Consommation d'énergie primaire
Non communiquéClasse énergétique
Non communiquéNuméro du rapport PEB
Non communiquéEmission CO₂
Non communiquéType de chauffage
Non communiquéVitrage
Double
Prix
Type de bien
MaisonDisponibilité
à vendrePrix
189000 €
Estimation de votre bien
Estimation gratuitede votre bien
© 2021 - Tous droits réservés - Mentions légales - Cookies - Design et développement de Mélanie Klein
Instance de contrôle: IPI, rue du Luxembourg 16B, 1000 Bruxelles. Soumis au code déontologique de l’ IPI: www.ipi.be - N° IPI : 510.111 - N* BCE : BE0754.800.550 - RC professionnelle et cautionnement via AXA Belgium SA – police n° 730.390.160.